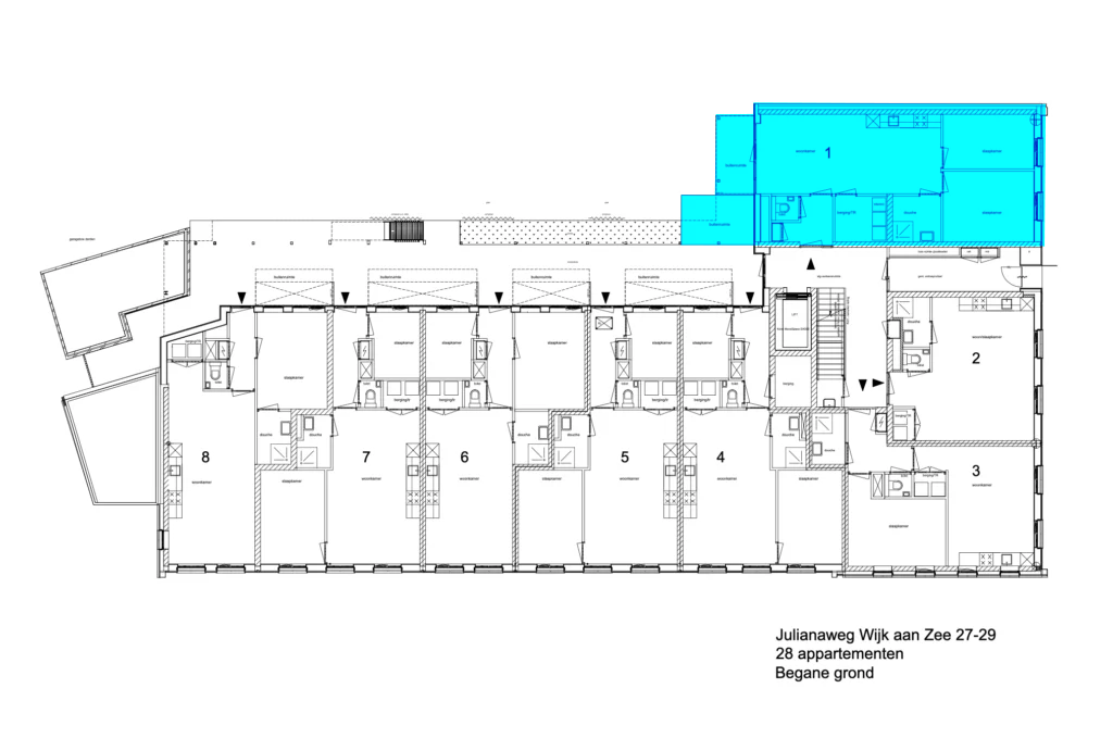
3-kamerappartement – Bouwnummer 1 (Begane grond, 67 m² GO) met terras

3-kamerappartement – Bouwnummer 1 (Begane grond, 67 m² GO) met terras

Ontdek dit moderne en comfortabel ingedeelde 3-kamerappartement van 67 m² op de begane grond. De woning combineert optimaal wooncomfort met een slimme indeling en een fijne buitenruimte, ideaal voor starters, stellen of kleine huishoudens die gelijkvloers willen wonen.

Bij binnenkomst ervaar je meteen de lichte en ruimtelijke uitstraling van de heerlijke woonkamer met open keuken. Dankzij de grote raampartijen valt er veel natuurlijk licht binnen, waardoor de leefruimte warm en uitnodigend aanvoelt. De keuken is eigentijds vormgegeven en biedt genoeg ruimte voor een gezellige eethoek.

Het appartement beschikt over twee slaapkamers, waarvan de grootste uitstekend geschikt is als master bedroom. De tweede kamer kan ideaal dienen als logeer- of werkkamer. De badkamer is modern en praktisch ingericht, met aangrenzend een separate toiletruimte. Daarnaast is er een handige inpandige berging voor extra opslag en de wasmachineopstelling.

Een absoluut pluspunt is het privéterras, waar je heerlijk buiten kunt zitten en kunt genieten van een groene en rustige omgeving.

Kenmerken

  • Type: 3-kamerappartement

  • Woonoppervlakte: 67 m² (GO)

  • Ligging: Begane grond

  • Buitenruimte: Privéterras

  • Twee comfortabele slaapkamers

  • Lichte woonkamer met open keuken

  • Moderne badkamer en separate toiletruimte

Dit appartement biedt een perfecte mix van comfort, functionaliteit en buitenruimte. Een ideale plek om thuis te komen!