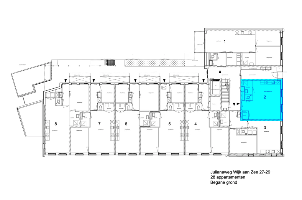
1-kamerappartement – Bouwnummer 2 (Begane grond, 38 m² GO) met gemeenschappelijke tuin

1-kamerappartement – Bouwnummer 2 (Begane grond, 38 m² GO) met gemeenschappelijke tuin

Ontdek dit knusse en compact ingedeelde 1-kamerappartement van 38 m² op de begane grond. De woning is perfect voor starters, singles of studenten en combineert een slimme, efficiënte indeling met het grote voordeel van een heerlijke gemeenschappelijke buitenruimte.

Bij binnenkomst ervaart u de open en lichte uitstraling van de leefruimte met open keuken. De slimme opzet zorgt ervoor dat de ruimte functioneert als woonkamer, slaapkamer en eethoek. Dankzij het efficiënte ontwerp wordt elke vierkante meter optimaal benut. De moderne keuken is compleet en praktisch voor dagelijks gebruik.

Het appartement beschikt over een nette en complete badkamer met douche, wastafel en toilet, die direct bij de entree is gesitueerd. Dit zorgt voor een duidelijke scheiding tussen de leefruimte en de natte cel. De grote open ruimte biedt u de vrijheid om uw eigen inrichting te creëren voor een comfortabel thuisgevoel.

Een absoluut pluspunt is de toegang tot de gemeenschappelijke tuin, waar u heerlijk buiten kunt zitten en kunt genieten van de rust. Dit extra groen maakt het appartement compleet.

Kenmerken

  • Type: 1-kamerappartement

  • Woonoppervlakte: 38 m² (GO)

  • Ligging: Begane grond

  • Buitenruimte: Gemeenschappelijke tuin

  • Efficiënte, open leefruimte

  • Lichte woonkamer met open keuken

  • Complete badkamer met toilet

Dit appartement biedt een perfecte mix van functionaliteit, comfort en een gewaardeerde buitenruimte. Een ideale en betaalbare plek om uw woondroom te starten!