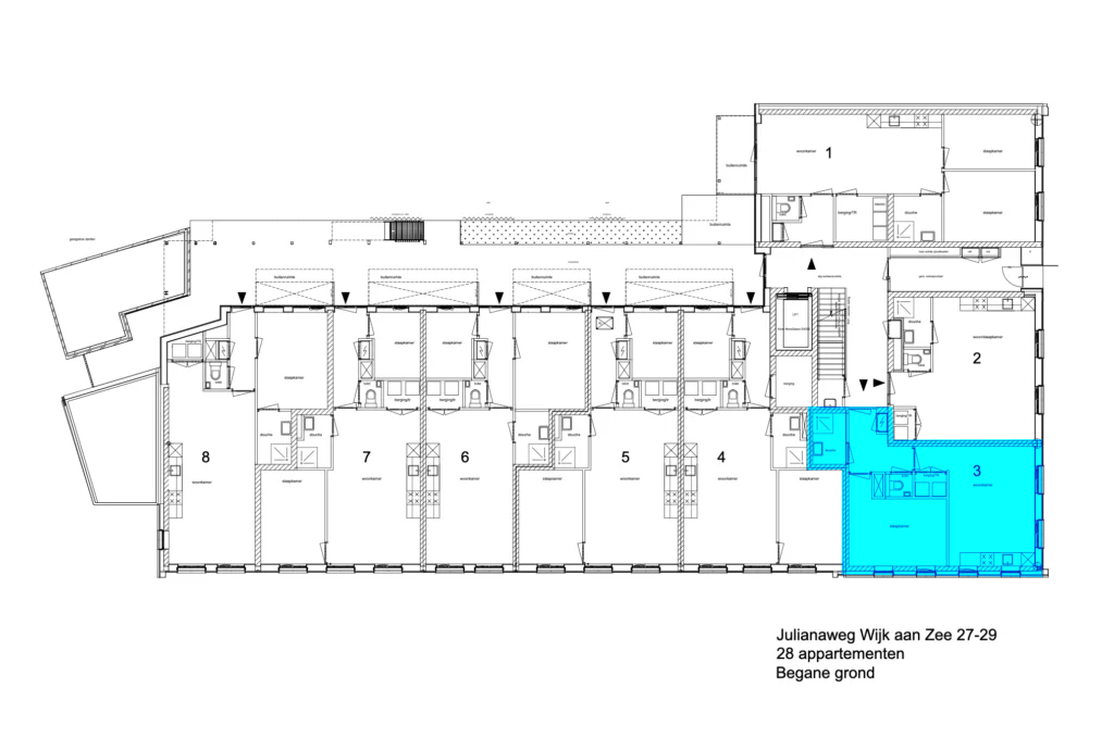
3-kamerappartement – Bouwnummer 4 (Begane grond, 63 m² GO) met privéterras

3-kamerappartement – Bouwnummer 4 (Begane grond, 63 m² GO) met privéterras

Ontdek dit ruime en comfortabel ingedeelde 3-kamerappartement van 63 m² op de begane grond. Met twee volwaardige slaapkamers en een royaal privéterras is dit de ideale woning voor starters, koppels of kleine gezinnen die op zoek zijn naar een gelijkvloerse, complete woning.

De woning wordt gekenmerkt door een royale woonkamer met open keuken. Dankzij de grote raampartijen aan de voorzijde stroomt er veel daglicht binnen, waardoor de leefruimte licht en uitnodigend aanvoelt. De open keuken biedt voldoende werk- en opbergruimte en is ideaal voor een gezellige eethoek.

Het appartement beschikt over twee comfortabele slaapkamers. De grootste slaapkamer bevindt zich aan de rustige achterzijde en biedt direct toegang tot de hal. De tweede slaapkamer is perfect te gebruiken als kinderkamer, logeerkamer of thuiskantoor. De moderne badkamer is compleet met een douche en wastafel. Daarnaast is er een aparte toiletruimte en een inpandige berging met de wasmachineaansluiting.

Een absoluut hoogtepunt van dit appartement is het privéterras aan de zijkant van de woning, waar u op elk moment van de dag heerlijk kunt ontspannen en genieten van uw eigen buitenplek.

Kenmerken

  • Type: 3-kamerappartement

  • Woonoppervlakte: 63 m² (GO)

  • Ligging: Begane grond

  • Buitenruimte: Privéterras

  • Twee volwaardige slaapkamers

  • Lichte woonkamer met open keuken

  • Separate toiletruimte en inpandige berging

Dit appartement biedt een complete woonoplossing met een slimme indeling en fijne buitenruimte. Een perfecte plek om uw thuis te creëren!