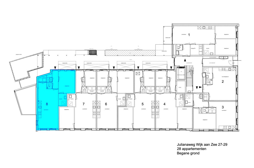
2-kamerappartement – Bouwnummer 8 (Begane grond, 57 m² GO) met privéterras

2-kamerappartement – Bouwnummer 8 (Begane grond, 57 m² GO) met privéterras

Dit comfortabele 2-kamerappartement van 57 m² op de begane grond kenmerkt zich door een slimme en efficiënte indeling. De woning is perfect voor starters of koppels die een praktische basis zoeken met de luxe van een eigen buitenruimte, ideaal voor rustig wonen op één niveau.

De woning beschikt over een ruime en lichte leefruimte met de keuken aan de voorzijde. De moderne open keuken staat in directe verbinding met de woonkamer, die voldoende plaats biedt voor een royale eethoek en een zithoek. Door de gunstige lichtinval voelt de ruimte aangenaam en uitnodigend aan.

Het appartement heeft een separate slaapkamer aan de achterzijde, wat zorgt voor rust en privacy. Deze kamer is ruim genoeg voor een tweepersoonsbed. De badkamer is compleet met een douche en een wastafel. De woning heeft daarnaast een aparte toiletruimte en een handige, inpandige berging met de aansluiting voor de wasmachine, wat bijdraagt aan het woongemak.

Een absoluut pluspunt is het privéterras, dat direct aan het appartement grenst. Dit is de perfecte, rustige plek om buiten te ontspannen en te genieten van de frisse lucht.

Kenmerken

     
  • Type: 2-kamerappartement

  •  
  • Woonoppervlakte: 57 m² (GO)

  •  
  • Ligging: Begane grond

  •  
  • Buitenruimte: Privéterras

  •  
  • Separate slaapkamer voor rust en privacy

  •  
  • Ruime leefruimte met open keuken

  •  
  • Separate toiletruimte en inpandige berging

Dit appartement biedt een perfecte combinatie van comfort, functionaliteit en een rustige buitenplek. De ideale basis om heerlijk te wonen!