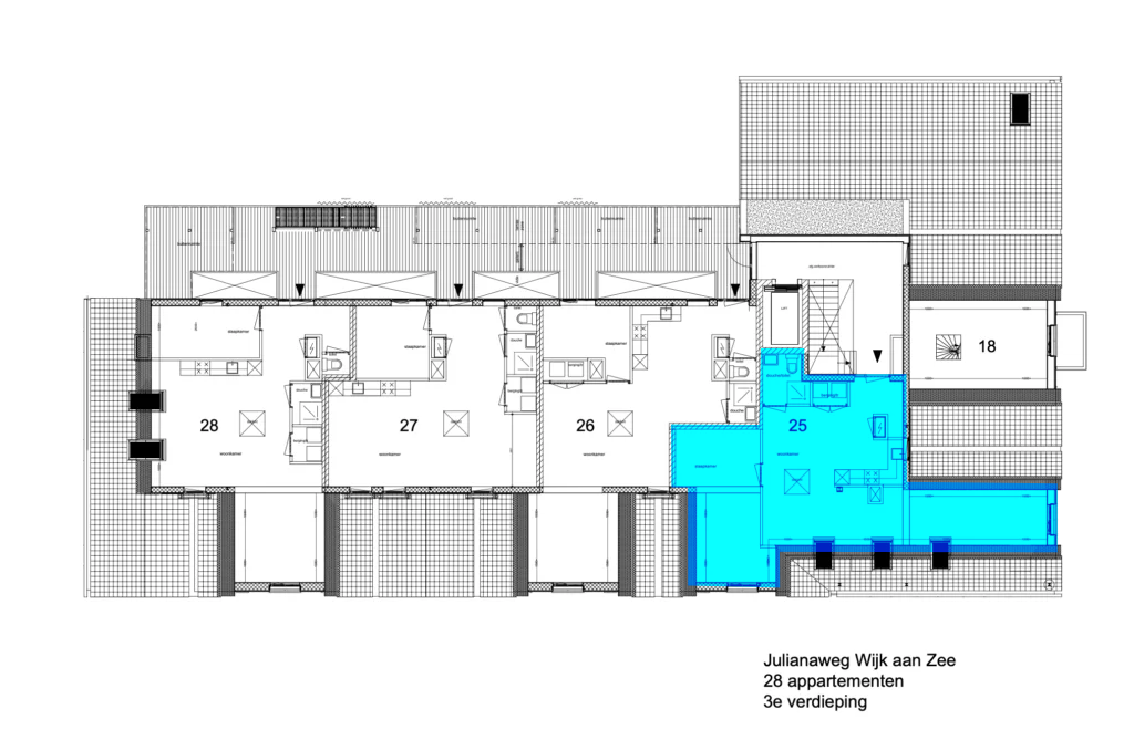
1-kamerappartement – Bouwnummer 25 (Derde verdieping, 70 m² GO) met balkon

1-kamerappartement – Bouwnummer 25 (Derde verdieping, 70 m² GO) met balkon

Dit is een zeer ruim en uniek 1-kamerappartement van 70 m² op de derde (bovenste) verdieping. De woning kenmerkt zich door een royale, open indeling onder de kap. Ideaal voor singles of koppels die van veel ruimte, licht en de charme van een topetage houden.

De gigantische leefruimte beslaat het grootste deel van het appartement. Het is een open en lichte ruimte met de keuken centraal in het midden, waardoor er een natuurlijke scheiding ontstaat tussen het zit- en eetgedeelte. De ruimte is sfeervol door de dakconstructie en de meerdere dakramen, wat zorgt voor een fantastische lichtinval.

Ondanks dat het een 1-kamerappartement is, biedt de opzet een apart slaapgedeelte aan de achterzijde, dat ruim genoeg is voor een tweepersoonsbed. De badkamer ligt hier direct naast en is netjes afgewerkt. Via de centrale leefruimte zijn de separate toiletruimte en de inpandige berging te bereiken, wat zorgt voor alle praktische voorzieningen.

Het privébalkon is een heerlijke aanvulling. U heeft hier een eigen buitenplek op de bovenste verdieping, perfect om buiten te ontspannen en te genieten van het uitzicht.

Kenmerken

  • Type: 1-kamerappartement

  • Woonoppervlakte: 70 m² (GO)

  • Ligging: Derde verdieping (bovenste)

  • Buitenruimte: Privébalkon

  • Zeer royale, open leefruimte

  • Slaapgedeelte aan de achterzijde

  • Charmante woning onder de kap

Bouwnummer 25 is een unieke, lichte en zeer ruime woning op de topetage. De ideale plek voor wie van openheid en sfeer houdt!