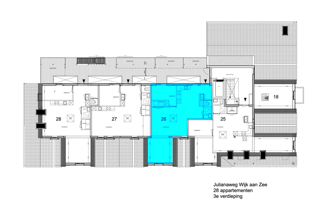
2-kamerappartement – Bouwnummer 26 (Derde verdieping, 66 m² GO) met balkon

2-kamerappartement – Bouwnummer 26 (Derde verdieping, 66 m² GO) met balkon

Dit is een comfortabel en ruim 2-kamerappartement van 66 m² op de derde (bovenste) verdieping. De woning is ideaal voor koppels die een lichte, complete woonplek zoeken met het gemak van een eigen balkon. Door de ligging op de topetage geniet u hier van een rustige woonomgeving.

De woning beschikt over een royale, lichte leefruimte met de open keuken aan de achterzijde. De woonkamer is breed opgezet en biedt voldoende plek voor een grote eettafel en een comfortabele zithoek. De moderne open keuken is praktisch en vormt het sociale hart van de woning. Vanuit de woonkamer heeft u bovendien direct toegang tot het balkon.

Het appartement heeft een separate en ruime slaapkamer aan de voorzijde, wat zorgt voor rust en privacy. De badkamer is netjes uitgevoerd met een douche en een wastafel. De woning heeft daarnaast een aparte toiletruimte en een handige, inpandige berging met de wasmachineaansluiting, wat zorgt voor optimaal woongemak.

Het privébalkon is een heerlijke aanvulling. U heeft hier een eigen buitenplek op de bovenste verdieping, perfect om buiten te ontspannen en te genieten van het uitzicht.

Kenmerken

  • Type: 2-kamerappartement

  • Woonoppervlakte: 66 m² (GO)

  • Ligging: Derde verdieping (bovenste)

  • Buitenruimte: Privébalkon

  • Separate slaapkamer en lichte indeling

  • Ruime woonkamer met open keuken

  • Separate toiletruimte en inpandige berging

Bouwnummer 26 biedt comfort, ruimte en een fijne buitenplek op hoogte. Een ideale en complete woning!