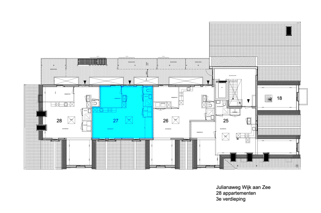
2-kamerappartement – Bouwnummer 27 (Derde verdieping, 57 m² GO) met balkon

2-kamerappartement – Bouwnummer 27 (Derde verdieping, 57 m² GO) met balkon

Dit is een compact en praktisch 2-kamerappartement van 57 m² op de derde (bovenste) verdieping. De woning kenmerkt zich door een efficiënte indeling met een ruime slaapkamer en een eigen balkon. Ideaal voor starters of koppels die op zoek zijn naar een lichte, complete en overzichtelijke woning op de topetage.

De woning beschikt over een lichte leefruimte met de open keuken aan de linkerkant. De keuken en het eetgedeelte zijn ruim opgezet, met voldoende plek voor een royale tafel. De woonkamer is dankzij de grote ramen en de ligging op de bovenste verdieping heerlijk licht en biedt een fijne zithoek.

Het appartement heeft een separate en ruime slaapkamer aan de rechterzijde, wat zorgt voor rust en privacy. De complete badkamer is netjes en voorzien van een douche, wastafel en zelfs een ligbad. De woning beschikt daarnaast over een handige inpandige berging met de wasmachineaansluiting, wat bijdraagt aan het woongemak.

Het privébalkon is een grote meerwaarde. U heeft hier een eigen buitenplek op de bovenste verdieping, perfect om buiten te ontspannen en te genieten van het uitzicht.

Kenmerken

  • Type: 2-kamerappartement

  • Woonoppervlakte: 57 m² (GO)

  • Ligging: Derde verdieping (bovenste)

  • Buitenruimte: Privébalkon

  • Separate slaapkamer en praktische indeling

  • Lichte woonkamer met open keuken

  • Complete badkamer met bad en douche

Bouwnummer 27 biedt comfort, licht en een slimme indeling. Een ideale en complete woning op de topetage!