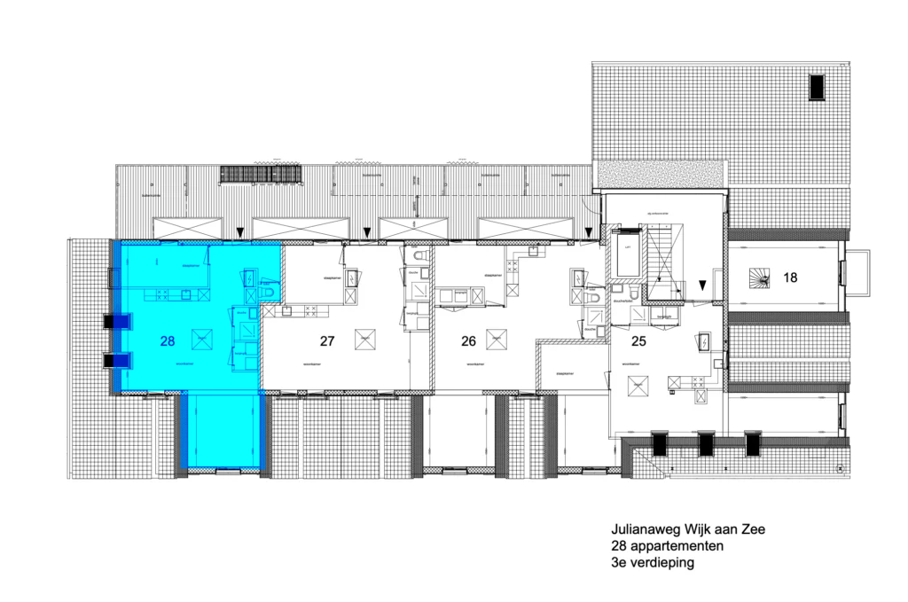
2-kamerappartement – Bouwnummer 28 (Derde verdieping, 66 m² GO) met royaal balkon/terras

2-kamerappartement – Bouwnummer 28 (Derde verdieping, 66 m² GO) met royaal balkon/terras

Dit is een ruim en licht 2-kamerappartement van 66 m² op de derde (bovenste) verdieping. De woning is ideaal voor koppels die veel waarde hechten aan ruimte en een grote buitenplek. Het appartement combineert een comfortabele indeling met een zeer royaal terras met een hoekligging.

De woning beschikt over een lichte en royale leefruimte met de keuken centraal in het midden. De ruimte is breed opgezet en biedt voldoende plek voor een grote eettafel en een comfortabele zithoek. Door de ligging op de topetage en de vele ramen geniet u van uitstekende lichtinval.

Het appartement heeft een separate en ruime slaapkamer aan de achterzijde, wat zorgt voor rust en privacy. De slaapkamer ligt direct naast de complete badkamer, die netjes is uitgevoerd. De woning heeft daarnaast een aparte toiletruimte en een handige inpandige berging, wat zorgt voor optimaal woongemak.

Het royale privéterras is een absolute blikvanger. Door de hoekligging en de ruime opzet is dit de perfecte plek om buiten te leven en te genieten van de zon en het uitzicht.

Kenmerken

  • Type: 2-kamerappartement

  • Woonoppervlakte: 66 m² (GO)

  • Ligging: Derde verdieping (bovenste)

  • Buitenruimte: Royaal privéterras

  • Separate slaapkamer en lichte indeling

  • Ruime woonkamer met open keuken

  • Separate toiletruimte en inpandige berging

Bouwnummer 28 is een complete en comfortabele woning met een uitzonderlijk grote buitenplek. De ideale plek voor wie ruimte en buitenleven zoekt op de topetage!