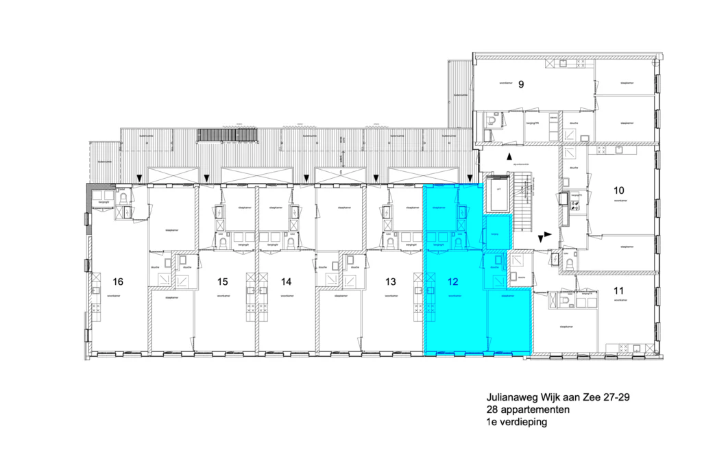
3-kamerappartement – Bouwnummer 12 (Eerste verdieping, 63 m² GO) met balkon

3-kamerappartement – Bouwnummer 12 (Eerste verdieping, 63 m² GO) met balkon

Dit is een ruim en compleet 3-kamerappartement van 63 m² op de eerste verdieping. Met twee comfortabele slaapkamers en een eigen balkon is dit de ideale woning voor een klein gezin, een koppel of iedereen die op zoek is naar extra ruimte en een fijne buitenplek op hoogte.

De woning beschikt over een lichte en royale woonkamer met open keuken. De leefruimte is ruim en biedt voldoende mogelijkheid voor een comfortabele zithoek en een eetgedeelte. De moderne open keuken is centraal in de ruimte geplaatst en zorgt voor een open en sociale sfeer.

Het appartement heeft twee volwaardige slaapkamers, waarvan de hoofdslaapkamer aan de achterzijde ligt en ruim is opgezet. De tweede slaapkamer is perfect te gebruiken als kinderkamer of thuiskantoor. De badkamer is netjes en voorzien van een douche. Daarnaast beschikt de woning over een separate toiletruimte en een handige, inpandige berging met de aansluiting voor de wasmachine, wat het woongemak vergroot.

Een groot pluspunt is het privébalkon dat grenst aan het appartement. Dit biedt u een fijne, eigen buitenruimte waar u heerlijk kunt ontspannen en genieten van de omgeving.

Kenmerken

  • Type: 3-kamerappartement

  • Woonoppervlakte: 63 m² (GO)

  • Ligging: Eerste verdieping

  • Buitenruimte: Privébalkon

  • Twee volwaardige slaapkamers

  • Lichte woonkamer met open keuken

  • Separate toiletruimte en inpandige berging

Bouwnummer 12 is een complete en comfortabele woning met een slimme indeling en fijne buitenruimte. Een perfecte plek om thuis te komen!