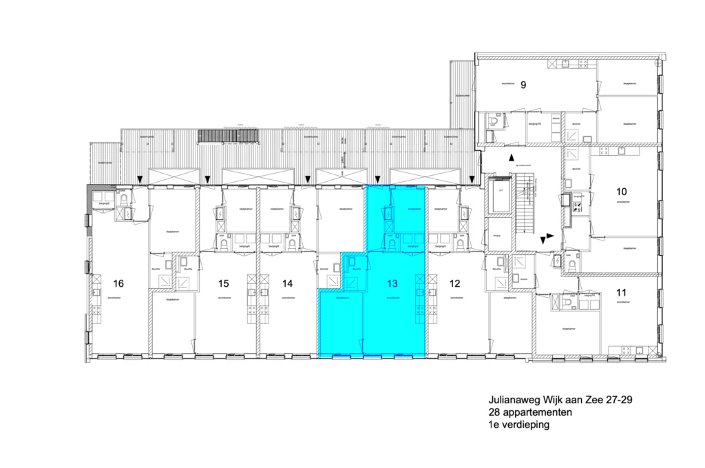
3-kamerappartement – Bouwnummer 13 (Eerste verdieping, 59 m² GO) met balkon

3-kamerappartement – Bouwnummer 13 (Eerste verdieping, 59 m² GO) met balkon

Dit is een comfortabel en efficiënt ingedeeld 3-kamerappartement van 59 m² op de eerste verdieping. De woning biedt twee volwaardige slaapkamers en een eigen balkon, wat het een ideale en complete woonoplossing maakt voor starters, koppels of kleine gezinnen.

De leefruimte met open keuken is het lichte en uitnodigende middelpunt van de woning. Er is voldoende plek voor zowel een zithoek als een eettafel. De moderne open keuken is praktisch opgesteld en zorgt voor een open sfeer. Door de gunstige lichtinval voelt de ruimte aangenaam en ruim aan.

Het appartement beschikt over twee aparte slaapkamers die voldoende ruimte bieden. De hoofdslaapkamer is ruim en rustig gelegen aan de voorzijde. De tweede kamer is multifunctioneel en kan gebruikt worden als kinderkamer, logeerkamer of thuiskantoor. De badkamer is netjes uitgevoerd met een douche en een wastafel. Via de hal zijn de separate toiletruimte en de inpandige berging met de wasmachineaansluiting te bereiken.

Het privébalkon is een heerlijke aanvulling. Dit biedt u een eigen buitenplek om te ontspannen en te genieten van de omgeving op de eerste verdieping.

Kenmerken

  • Type: 3-kamerappartement

  • Woonoppervlakte: 59 m² (GO)

  • Ligging: Eerste verdieping

  • Buitenruimte: Privébalkon

  • Twee volwaardige slaapkamers

  • Lichte woonkamer met open keuken

  • Inpandige berging en aparte toiletruimte

Bouwnummer 13 is een perfecte, complete woning die comfortabel wonen combineert met de luxe van een eigen balkon.