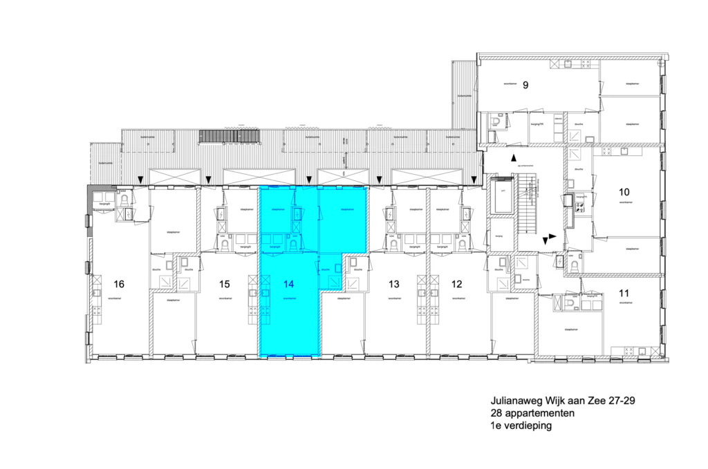
2-kamerappartement – Bouwnummer 14 (Eerste verdieping, 60 m² GO) met balkon

2-kamerappartement – Bouwnummer 14 (Eerste verdieping, 60 m² GO) met balkon

Dit is een licht en praktisch 2-kamerappartement van 60 m² op de eerste verdieping. De woning is zeer geschikt voor starters of koppels en biedt een comfortabele indeling met een ruime woonkamer. Het grootste pluspunt is het eigen balkon, ideaal voor wie een fijne privé buitenruimte wenst.

De riante leefruimte is het hart van de woning. De open keuken aan de zijkant zorgt voor een logische scheiding tussen het kook- en leefgedeelte. Dankzij de hoekligging en de raampartijen is de woonkamer heerlijk licht. Er is ruim voldoende plek voor een grote eettafel en een comfortabele zithoek.

Het appartement beschikt over een separate slaapkamer die voldoende ruimte biedt voor een tweepersoonsbed en is rustig gelegen. De moderne badkamer is compleet met een douche en een wastafel. Via de centrale hal zijn de separate toiletruimte en de inpandige berging met de wasmachineaansluiting te bereiken. Dit alles draagt bij aan een praktische en overzichtelijke woning.

Het privébalkon is een absolute meerwaarde. U kunt hier heerlijk buiten zitten en genieten van de frisse lucht op uw eigen buitenplek op de eerste verdieping.

Kenmerken

  • Type: 2-kamerappartement

  • Woonoppervlakte: 60 m² (GO)

  • Ligging: Eerste verdieping

  • Buitenruimte: Privébalkon

  • Separate slaapkamer en praktische indeling

  • Lichte woonkamer met open keuken

  • Separate toiletruimte en inpandige berging

Bouwnummer 14 is een comfortabele en complete woning met een fijne buitenruimte. Een perfecte start voor uw wooncarrière!