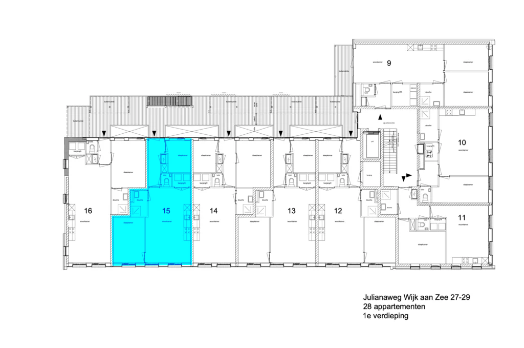
3-kamerappartement – Bouwnummer 15 (Eerste verdieping, 59 m² GO) met balkon

3-kamerappartement – Bouwnummer 15 (Eerste verdieping, 59 m² GO) met balkon

Dit is een ruim en sfeervol 3-kamerappartement van 59 m² op de eerste verdieping. Met twee comfortabele slaapkamers en een eigen balkon is dit de ideale woning voor starters, koppels of kleine gezinnen die waarde hechten aan een lichte, complete woning met een plek om van het buitenleven te genieten.

De woning beschikt over een lichte woonkamer met open keuken. De ruimte is efficiënt en sfeervol ingedeeld, waardoor er voldoende plek is voor een gezellige zithoek en een eetgedeelte. De moderne open keuken is praktisch opgesteld en zorgt voor een open en sociale sfeer in het hart van het appartement.

Het appartement heeft twee volwaardige slaapkamers die u optimaal privacy bieden. De hoofdslaapkamer is ruim en de tweede kamer kan perfect dienen als kinderkamer of thuiskantoor. De badkamer is netjes en compleet met een douche en een wastafel. De woning heeft daarnaast een separate toiletruimte en een handige, inpandige berging met de wasmachineaansluiting.

Het privébalkon is een heerlijke aanvulling op de woonruimte. Hier kunt u buiten ontspannen en genieten van uw eigen rustige buitenplek op de eerste verdieping.

Kenmerken

  • Type: 3-kamerappartement

  • Woonoppervlakte: 59 m² (GO)

  • Ligging: Eerste verdieping

  • Buitenruimte: Privébalkon

  • Twee volwaardige slaapkamers

  • Lichte woonkamer met open keuken

  • Inpandige berging en aparte toiletruimte

Bouwnummer 15 is een comfortabele en complete woning die u alles biedt voor sfeervol wonen!