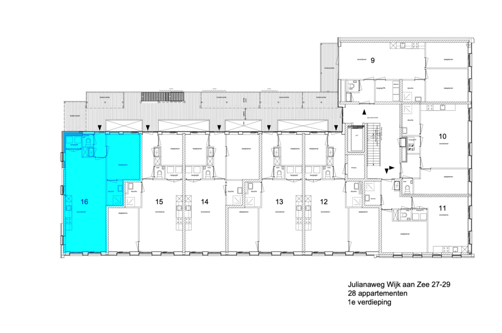
2-kamerappartement – Bouwnummer 16 (Eerste verdieping, 59 m² GO) met balkon

2-kamerappartement – Bouwnummer 16 (Eerste verdieping, 59 m² GO) met balkon

Dit is een functioneel en comfortabel 2-kamerappartement van 59 m² op de eerste verdieping. De woning kenmerkt zich door een lichte, praktische indeling. Ideaal voor starters of koppels die op zoek zijn naar een complete woning met de luxe van een eigen buitenruimte.

De riante leefruimte vormt het lichte middelpunt van de woning. De open keuken aan de zijkant is ruim en biedt volop mogelijkheid voor een gezellige eettafel. De woonkamer is dankzij de raampartijen heerlijk licht en biedt voldoende plek voor een comfortabele zithoek. Vanuit de woonkamer heeft u bovendien direct toegang tot het balkon.

Het appartement beschikt over een separate slaapkamer die voldoende ruimte biedt voor een tweepersoonsbed. De slaapkamer ligt rustig aan de achterzijde van het appartement. De badkamer is netjes en compleet met een douche en een wastafel. Via de hal zijn de separate toiletruimte en de inpandige berging met de wasmachineaansluiting te bereiken, wat het woongemak optimaliseert.

Het privébalkon is een grote meerwaarde. Dit biedt u een heerlijke eigen plek om buiten te zitten en te genieten van de omgeving op de eerste verdieping.

Kenmerken

  • Type: 2-kamerappartement

  • Woonoppervlakte: 59 m² (GO)

  • Ligging: Eerste verdieping

  • Buitenruimte: Privébalkon

  • Separate slaapkamer en lichte indeling

  • Ruime leefruimte met open keuken

  • Inpandige berging en aparte toiletruimte

Bouwnummer 16 is een complete en comfortabele woning met een fijne buitenruimte. Een ideale startplek!