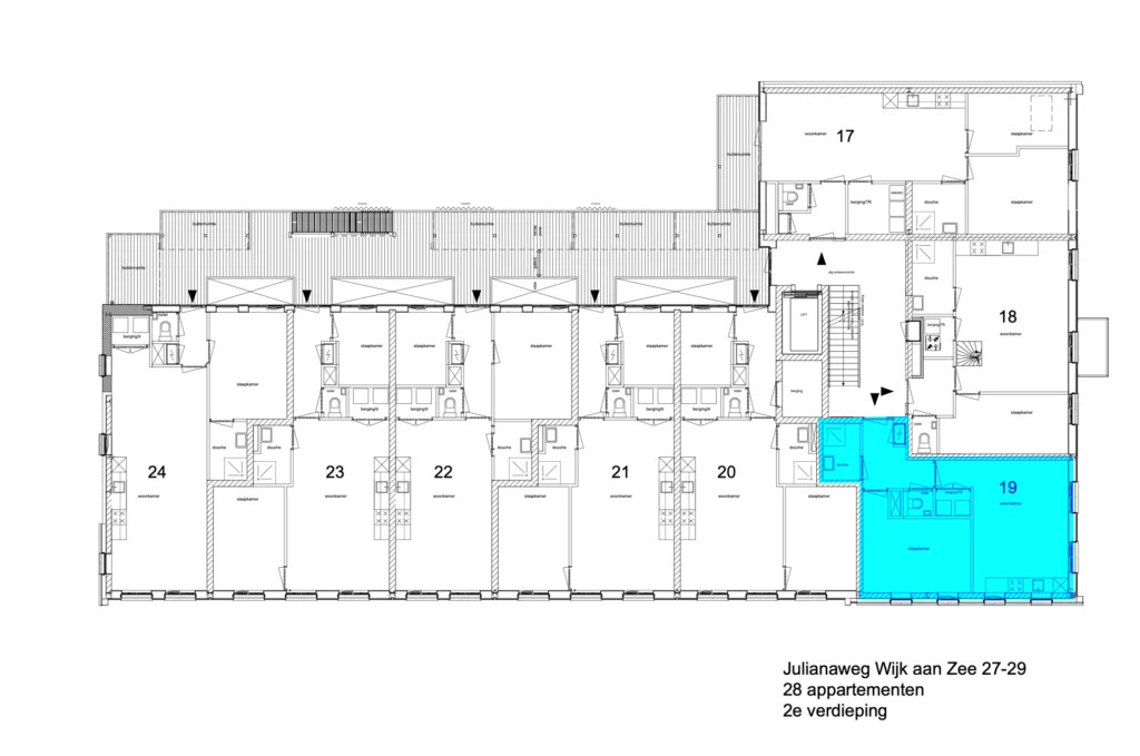
2-kamerappartement – Bouwnummer 19 (Tweede verdieping, 49 m² GO) met gemeenschappelijke tuin

2-kamerappartement – Bouwnummer 19 (Tweede verdieping, 49 m² GO) met gemeenschappelijke tuin

Dit is een compact en licht 2-kamerappartement van 49 m² op de tweede (bovenste) verdieping. De woning kenmerkt zich door een slimme indeling die de ruimte optimaal benut. Perfect voor starters of singles die een complete en overzichtelijke woning zoeken met toegang tot een fijne, gemeenschappelijke buitenruimte.

De leefruimte met open keuken is het centrale en lichte middelpunt van het appartement. De ruimte is efficiënt ingericht, met voldoende plek voor zowel een gezellige zithoek als een eettafel. De moderne open keuken is praktisch opgesteld en zorgt voor een complete en functionele basis voor dagelijks gebruik.

Het appartement beschikt over een aparte slaapkamer die ruim genoeg is voor een tweepersoonsbed. De slaapkamer ligt rustig en heeft direct toegang tot de hal. De badkamer is netjes en compleet met een douche en een wastafel. Via de hal zijn de badkamer, de separate toiletruimte en de inpandige berging met de wasmachineaansluiting bereikbaar, wat zorgt voor een hoog woongemak.

Hoewel u op de bovenste verdieping woont, biedt de toegang tot de gemeenschappelijke tuin een ideale plek voor ontspanning buiten, een groot pluspunt voor een compacte woning.

Kenmerken

  • Type: 2-kamerappartement

  • Woonoppervlakte: 49 m² (GO)

  • Ligging: Tweede verdieping (bovenste)

  • Buitenruimte: Gemeenschappelijke tuin

  • Separate slaapkamer en slimme indeling

  • Lichte woonkamer met open keuken

  • Inpandige berging en aparte toiletruimte

Bouwnummer 19 is de ideale basis voor comfortabel en efficiënt wonen. Een lichte woning met de luxe van een gezamenlijke buitenplek!