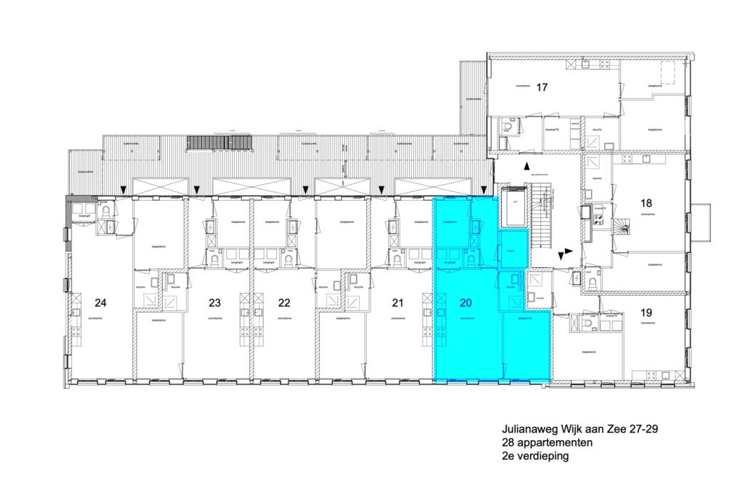
2-kamerappartement – Bouwnummer 20 (Tweede verdieping, 63 m² GO) met balkon

2-kamerappartement – Bouwnummer 20 (Tweede verdieping, 63 m² GO) met balkon

Dit is een ruim en comfortabel 2-kamerappartement van 63 m² op de tweede (bovenste) verdieping. De woning is zeer geschikt voor koppels die waarde hechten aan een lichte, royale leefruimte en het gemak van een eigen balkon, perfect voor rustig en compleet wonen op de bovenste etage.

De woning beschikt over een royale, lichte leefruimte met de open keuken aan de zijkant. De woonkamer biedt voldoende plek voor zowel een ruime eettafel als een comfortabele zithoek. De moderne open keuken is praktisch opgesteld en zorgt voor een open en sociale sfeer. Vanuit de woonkamer heeft u bovendien direct toegang tot het balkon.

Het appartement heeft een separate en ruime slaapkamer aan de achterzijde, wat zorgt voor rust en privacy. Deze kamer is groot genoeg voor een tweepersoonsbed en kastruimte. De badkamer is netjes en compleet met een douche en een wastafel. De woning heeft daarnaast een aparte toiletruimte en een handige, inpandige berging met de wasmachineaansluiting.

Het privébalkon is een heerlijke aanvulling. U heeft hier een eigen buitenplek op de bovenste verdieping, perfect om buiten te ontspannen en te genieten van het uitzicht.

Kenmerken

  • Type: 2-kamerappartement

  • Woonoppervlakte: 63 m² (GO)

  • Ligging: Tweede verdieping (bovenste)

  • Buitenruimte: Privébalkon

  • Separate slaapkamer en lichte indeling

  • Ruime woonkamer met open keuken

  • Separate toiletruimte en inpandige berging

Bouwnummer 20 biedt comfort, ruimte en een fijne buitenplek. Een ideale en complete woning op een rustige locatie!