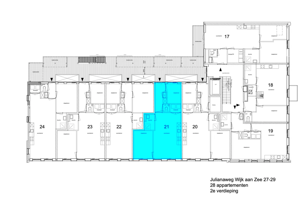
2-kamerappartement – Bouwnummer 21 (Tweede verdieping, 59 m² GO) met balkon

2-kamerappartement – Bouwnummer 21 (Tweede verdieping, 59 m² GO) met balkon

Dit is een praktisch en compleet 2-kamerappartement van 59 m² op de tweede (bovenste) verdieping. De woning beschikt over een aparte slaapkamer en een eigen balkon, wat het een ideale en overzichtelijke woning maakt voor starters of koppels die op zoek zijn naar een lichte, comfortabele en complete startplek.

De leefruimte met open keuken is het centrale en lichte middelpunt van de woning. Er is voldoende plek voor zowel een gezellige zithoek als een eettafel. De moderne open keuken is praktisch opgesteld en grenst aan het leefgedeelte. Dankzij de ramen aan de voorzijde geniet u van uitstekende lichtinval.

Het appartement beschikt over een aparte en ruime slaapkamer aan de achterzijde, wat zorgt voor rust en privacy. De badkamer is netjes en compleet met een douche en een wastafel. Via de hal zijn de badkamer, de separate toiletruimte en de inpandige berging met de wasmachineaansluiting te bereiken. Dit draagt bij aan de praktische functionaliteit van de woning.

Het privébalkon is een grote meerwaarde. U heeft hier een eigen buitenplek op de bovenste verdieping, perfect om buiten te ontspannen en te genieten van het uitzicht.

Kenmerken

  • Type: 2-kamerappartement

  • Woonoppervlakte: 59 m² (GO)

  • Ligging: Tweede verdieping

  • Buitenruimte: Privébalkon

  • Separate slaapkamer en praktische indeling

  • Lichte woonkamer met open keuken

  • Separate toiletruimte en inpandige berging

Bouwnummer 21 is een complete en comfortabele woning met een fijne buitenruimte. De ideale start voor uw wooncarrière!