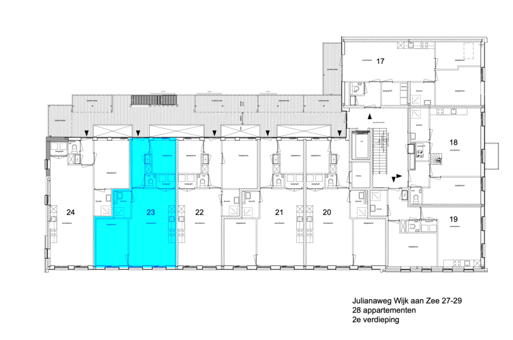
3-kamerappartement – Bouwnummer 23 (Tweede verdieping, 59 m² GO) met balkon

3-kamerappartement – Bouwnummer 23 (Tweede verdieping, 59 m² GO) met balkon

Dit is een licht en sfeervol 3-kamerappartement van 59 m² op de tweede (bovenste) verdieping. De woning biedt een slimme indeling met twee slaapkamers en een eigen balkon, wat het perfect maakt voor kleine gezinnen, koppels of iedereen die op zoek is naar een complete en comfortabele woning met veel lichtinval.

De leefruimte met open keuken is het lichte en uitnodigende middelpunt van de woning. Er is voldoende plek voor zowel een gezellige zithoek als een eetgedeelte. De moderne open keuken is praktisch opgesteld en zorgt voor een open en sociale sfeer. Door de ligging op de bovenste etage geniet u van een uitstekende lichtinval.

Het appartement beschikt over twee volwaardige slaapkamers. De hoofdslaapkamer is ruim en rustig gelegen aan de voorzijde. De tweede kamer is multifunctioneel en kan gebruikt worden als kinderkamer of thuiskantoor. De badkamer is netjes uitgevoerd met een douche en een wastafel. Via de hal zijn de separate toiletruimte en de inpandige berging met de wasmachineaansluiting te bereiken.

Het privébalkon is een heerlijke toevoeging. U heeft hier een eigen buitenplek op de bovenste verdieping, perfect om buiten te ontspannen en van de omgeving te genieten.

Kenmerken

  • Type: 3-kamerappartement

  • Woonoppervlakte: 59 m² (GO)

  • Ligging: Tweede verdieping (bovenste)

  • Buitenruimte: Privébalkon

  • Twee volwaardige slaapkamers

  • Lichte woonkamer met open keuken

  • Inpandige berging en aparte toiletruimte

Bouwnummer 23 is een complete en sfeervolle woning die comfortabel wonen combineert met de luxe van een eigen balkon op de bovenste etage!