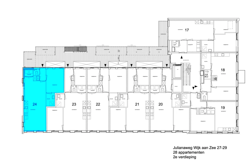
2-kamerappartement – Bouwnummer 24 (Tweede verdieping, 59 m² GO) met balkon

2-kamerappartement – Bouwnummer 24 (Tweede verdieping, 59 m² GO) met balkon

Dit is een praktisch en comfortabel 2-kamerappartement van 59 m² op de tweede (bovenste) verdieping. De woning kenmerkt zich door een slimme indeling en is heerlijk licht. Ideaal voor starters of koppels die op zoek zijn naar een complete woning met het gemak van een eigen balkon.

De leefruimte met open keuken is het lichte en centrale middelpunt van de woning. De ruimte is efficiënt en ruim ingedeeld, met voldoende plek voor zowel een comfortabele zithoek als een royale eettafel. De moderne open keuken is praktisch opgesteld en dankzij de hoekligging en de raampartijen geniet u van uitstekende lichtinval.

Het appartement beschikt over een separate slaapkamer die ruim genoeg is voor een tweepersoonsbed. De slaapkamer ligt rustig aan de achterzijde. De badkamer is netjes en compleet met een douche en een wastafel. Via de hal zijn de separate toiletruimte en de inpandige berging met de wasmachineaansluiting te bereiken, wat zorgt voor een hoog woongemak.

Het privébalkon is een grote meerwaarde. U heeft hier een eigen buitenplek op de bovenste verdieping, perfect om buiten te ontspannen en van het uitzicht te genieten.

Kenmerken

  • Type: 2-kamerappartement

  • Woonoppervlakte: 59 m² (GO)

  • Ligging: Tweede verdieping (bovenste)

  • Buitenruimte: Privébalkon

  • Separate slaapkamer en slimme indeling

  • Lichte woonkamer met open keuken

  • Inpandige berging en aparte toiletruimte

Bouwnummer 24 is een complete en comfortabele woning met een fijne buitenruimte. De ideale plek voor rustig en compleet wonen op de bovenste etage!